Facebook LinkedIn Instagram
ETRE RAPPELÉ

Appartement

Cognin (73160)
430 000€

Piéces : 4

Superficie : 80 m²

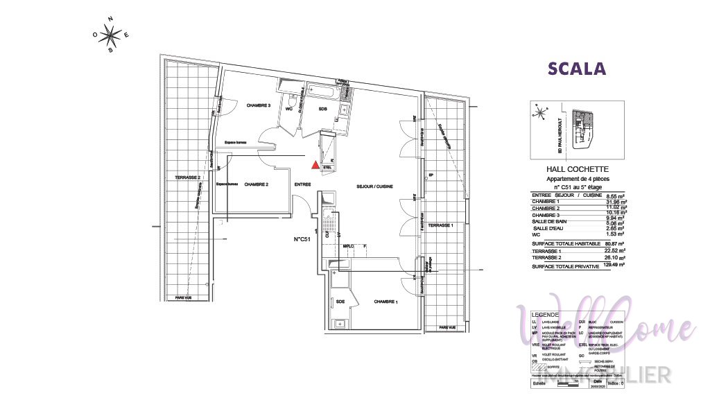
À Cognin, à 7 min du centre-ville de Chambéry, dans un secteur résidentiel aux vues dégagées sur les reliefs montagneux et proche des commodités - Découvrez la nouvelle résidence 'SCALA' à l'architecture élégante qui s’intègre harmonieusement dans un environnement verdoyant avec cœur d’îlot paysager et vues sur les montagnes. Livraison prévue pour le 3ème trimestre 2027 et actable dès maintenant ! La résidence se compose de 5 bâtiments abritant des appartements du studio au 4 pièces sur 6 étages maximum, tous avec un extérieur (balcon, loggia, terrasse ou jardin privatif) conçus pour offrir de généreux volumes et une belle luminosité naturelle. Parmi les lots disponibles, découvrez le lot n°C51 : un appartement 4 pièce de 80,87 m² au 4ème étage comprenant une entrée, un séjour-cuisine, 3 chambre, salle d’eau, salle d'eau, WC. Vendu avec un parking au sous-sol, la résidence met également à disposition un local à vélos. Idéal pour habiter ou investir dans cette ville dynamique et attractive des Alpes ! Contactez-nous dès maintenant pour en savoir plus et réserver votre futur appartement parmi les premiers lots disponibles ! Frais de notaire REDUITS Programme certifié NF Habitat et conforme RT 2012. Éligible Pinel (zone B1), PTZ, LLI, LMNP et LMP Bien soumis au statut juridique de la Copropriété. Nb de lots : 140 (hors annexes) Pas de procédure en cours. Prix TTC et Honoraires à charge vendeur TTC Surface CARREZ : 80.87 m²
  • Ville : Cognin
  • Code postal : 73160
  • Pays : France
  • Surface : 80 m²
  • Parking : 1
  • N° : Avenue
  • Pièces : 4
  • Référence :73028690
  • Etage(s) : 6
  • Cuisine :
  • Prix : 430000 €
  • Chambre(s) : 3
  • Terrasse : NON
  • Toilette(s) : 1
  • Exposition : Sud

Autres caractéristiques

construit en 2027 - ascenseur

    CE BIEN VOUS INTÉRESSE ?




    L'AGENCE

    WELLCOME IMMOBILIER

    VISITER