Facebook LinkedIn Instagram
ETRE RAPPELÉ

Appartement

Annecy (74000)
769 000€

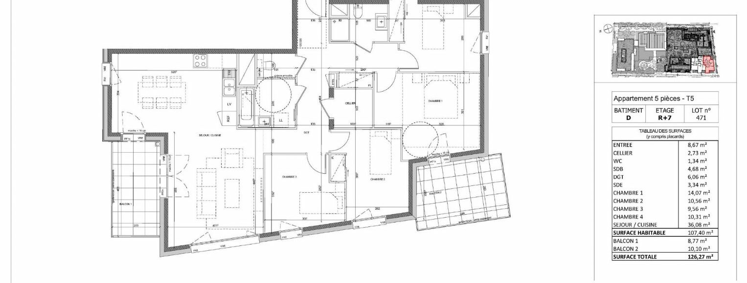
Piéces : 5

Superficie : 107 m²

À Annecy, secteur Cran-Gevrier à 8 min du lac d’Annecy, 15 min à pied du centre-ville et à proximité immédiate des commodités - Découvrez ce bel appartement neuf 5 pièces de 107,40 m² situé en Attique au 7ème étage du bâtiment D de la nouvelle résidence « Passage de Flore », dont la livraison est prévue au 2ème Trimestre 2027. La résidence calme et contemporaine se compose de 5 bâtiments harmonieusement intégrés dans un écrin de verdure. Composition de l’appartement T5 : -Entrée : 8,67 m² -Cellier : 2,73 m² -WC : 1,34 m² -Salle de bains : 4,68 m² -Dégagement : 6,06 m² Salle d’eau / WC : 3,34 m² 4 chambres : 14,07 m² /10,56 m²/9,56 m²/10,31 m² Séjour / Cuisine : 36,08 m² L’appartement bénéficie d’un balcon de 8,77m² côté N-O et d'un balcon de 10,10m² côté S-E. Vendu avec 1 garage double au sous-sol. Présence de locaux vélos et poussettes. Prestations & équipements : Le chauffage et l’eau chaude sanitaire sont assurés par une installation collective combinant PAC et chaudière gaz. Les huisseries sont en bois double vitrage avec volets roulants électrique. Porte d’entrée sécurisée. Contactez votre agence WellCome Immobilier pour obtenir plus d’informations et réserver cet appartement ! D’autres T4 et T5 sont disponibles dans la résidence. Frais de notaire OFFERTS. Programme au normes RE2020. Éligible Pinel (zone A), PTZ+, LLI TVA 10 %. Bien soumis au statut juridique de la Copropriété. Nb de lots : 105. Pas de procédure en cours. Prix TTC et Honoraires à charge vendeur TTC
  • Ville : Annecy
  • Code postal : 74000
  • Pays : France
  • Surface : 107 m²
  • Parking : 2
  • N° : 28
  • Pièces : 5
  • Référence :730281018
  • Etage(s) : 7
  • Cuisine :
  • Prix : 769000 €
  • Chambre(s) : 4
  • Terrasse : NON
  • Toilette(s) : 2
  • Exposition : Sud

Autres caractéristiques

construit en 2026 - ascenseur

    CE BIEN VOUS INTÉRESSE ?




    L'AGENCE

    WELLCOME IMMOBILIER

    VISITER