Facebook LinkedIn Instagram
ETRE RAPPELÉ

Appartement

AIX LES BAINS (73100)
1 303 000€

Piéces : 4

Superficie : 116 m²

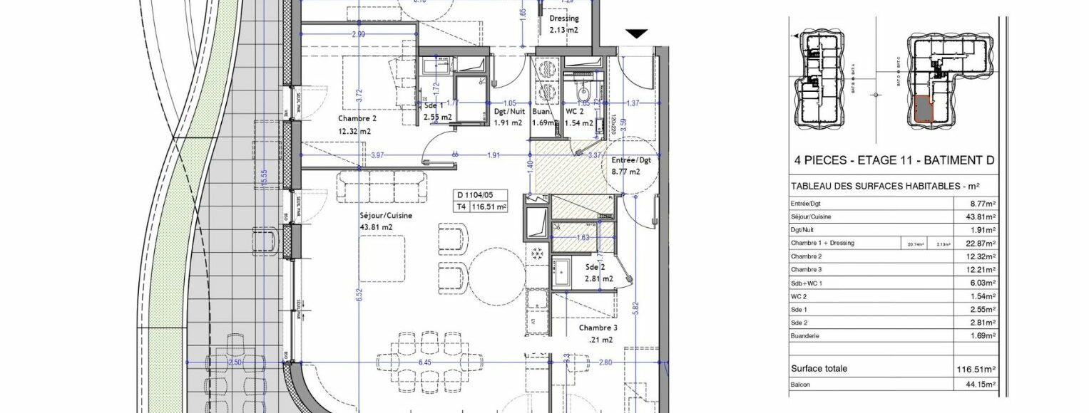
Appartement PREMIUM T4 de 116 m² - Box et Parking inclus – « Les Nouveaux Thermes » à Aix-les-Bains À Aix-les-Bains, en cœur de ville au sein de la prestigieuse résidence « Les Nouveaux Thermes » découvrez cet appartement 4 pièces de 116,51m² au 11ème sur 13 côté Nord-Ouest. Cet appartement haut de gamme comprend : entrée, séjour cuisine de 43,81m² et prolongée par un balcon d'angle végétalisé de 44,15 m² orienté Nord-Ouest, 2 suites parentales avec salle d'eau, une suite parentale avec salle de bains et wc, wc indépendant. Vendu avec un garage et une place de stationnement en sous-sol sécurisé. Présence de locaux vélos et poussettes sécurisés. Prestations haut de gamme : Plancher chauffant et rafraîchissant par géothermie. Menuiseries aluminium double vitrage. Brise-soleil orientables (BSO) et volets roulants électriques. Possibilité de personnalisation des finitions intérieurs. Une résidence contemporaine à haute performance environnementale : Façades et toitures végétalisées, Récupération des eaux pluviales, Chauffage et rafraîchissement par géothermie. D’autres appartements T4 sont disponibles dans la résidence (de 103m² à 196m² au prix de 995 000 € à 2 699 000 €). Pour plus d’informations et pour réserver votre futur appartement contactez votre agence WellCome Immobilier ! Livraison prévue : 1er Trimestre 2029 Frais de notaire réduits Programme certifié RE2020 seuil 2022 & NF Habitat HQE Surface CARREZ : 116.51 m²
  • Ville : AIX LES BAINS
  • Code postal : 73100
  • Pays : France
  • Surface : 116 m²
  • Parking : 1
  • N° : 0
  • Pièces : 4
  • Référence :730281043
  • Etage(s) : 13
  • Cuisine :
  • Prix : 1303000 €
  • Chambre(s) : 3
  • Terrasse : NON
  • Toilette(s) : 1
  • Exposition : Nord

Autres caractéristiques

construit en 2029 - ascenseur

    CE BIEN VOUS INTÉRESSE ?




    L'AGENCE

    WELLCOME IMMOBILIER

    VISITER