ETRE RAPPELÉ
1/6
Appartement
LA MOTTE SERVOLEX (73290)
332 700€
Piéces : 3
Superficie : 70 m²
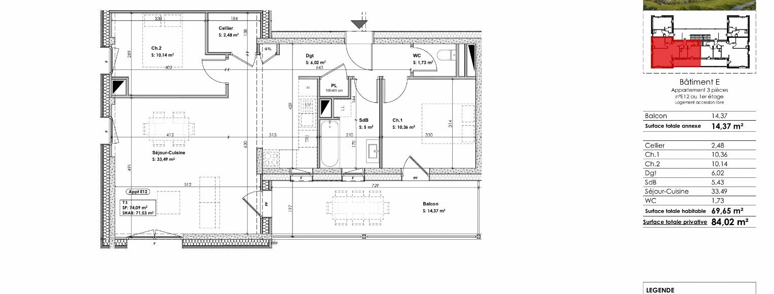
À La Motte-Servolex, entre lac et montagnes, découvrez la résidence « PANORAMA » qui prend place au cœur de l’écoquartier des Granges, un environnement résidentiel et verdoyant, à moins de 3 km de la plage du lac du Bourget. Cette nouvelle réalisation à taille humaine se compose de 6 petits bâtiments de seulement 2 étages, regroupant 53 appartements du studio au 5 pièces. Chaque logement bénéficie d’un espace extérieur ainsi que d’un stationnement en sous-sol. Plusieurs appartements profitent de vues dégagées sur le massif des Bauges ou le lac du Bourget. La livraison est prévue pour le 4ème trimestre 2027 et les appartements sont actables dès maintenant ! À découvrir sans attendre : Le lot n°E12 soit un appartement 3 pièces de 69,65m² au 1er étage et comprend séjour/cuisine, dégagement, 2 chambres, salle de bain, wc, cellier, balcon de 14,37m². Vendu avec deux parking au sous-sol. Un appartement spacieux, confortable et parfaitement adapté pour une résidence principale, secondaire ou un investissement locatif de qualité. Contactez-nous dès maintenant pour en savoir plus et réserver votre futur appartement parmi les lots disponibles ! Frais de notaire OFFERTS. Programme conforme à la RE2020 – certifié NF Logement Cerqual visant le label Bâtiment Biosourcé.
- Ville : LA MOTTE SERVOLEX
- Code postal : 73290
- Pays : France
- Surface : 70 m²
- Parking : 2
- N° : Allée
- Pièces : 3
- Référence :73028696
- Etage(s) : 2
- Cuisine :
- Prix : 332700 €
- Chambre(s) : 2
- Terrasse : NON
- Toilette(s) : 1
- Exposition : Sud
Autres caractéristiques
construit en 2026 - ascenseur