Facebook LinkedIn Instagram
ETRE RAPPELÉ

Appartement

Grésy-sur-Aix (73100)
275 000€

Piéces : 4

Superficie : 98 m²

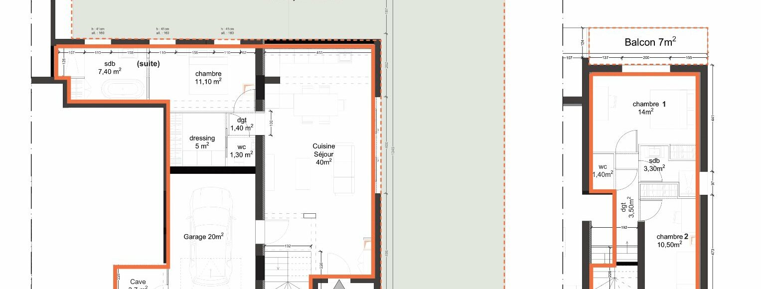
À Grésy-sur-Aix, secteur calme et verdoyant sur les premières hauteurs, à seulement 8 minutes d’Aix-les-Bains (3,6 km) et 5 minutes de l’école du village (2,5 km) – Appartement T4 en duplex jardin de 98,80 m² Carrez, proposé en plateau brut à aménager ! Situé au sein d’une copropriété intimiste de 4 logements, ce bien profite d’une triple exposition Est–Nord–Ouest avec 130 m² de jardin côté Nord-Ouest. Le projet d’aménagement prévoit : -Au rez-de-jardin : séjour avec cuisine de 40 m², ouvrant par de larges baies vitrées sur un jardin de 130 m² orienté Nord-Ouest, dégagement avec dressing et suite parentale avec salle de bains. -À l’étage : dégagement, 2 chambres (dont une avec balcon de 7 m² exposé Ouest), salle de bains, WC indépendant. Vendu avec un garage de 20 m², une cave et une place de stationnement extérieure. Les aménagements intérieurs sont à réaliser par l’acquéreur, offrant une liberté totale de conception et la possibilité de créer un logement sur mesure. Les compteurs d’eau et d’électricité seront installés par les vendeurs. Une belle opportunité pour un projet de vie personnalisé dans un cadre verdoyant et recherché. Contactez votre agence WellCome Immobilier pour organiser une visite sur place ! Bien issu d’une opération immobilière pour laquelle les démarches administratives sont en cours - acquisition possible dès mars 2026, sous réserve de réalisation du projet. Bien soumis au statut de la copropriété Nombre total de lots : 18 (annexes incluses) Pas de procédure en cours. Bien non soumis au DPE
  • Ville : Grésy-sur-Aix
  • Code postal : 73100
  • Pays : France
  • Surface : 98 m²
  • Parking : 1
  • N° :
  • Pièces : 4
  • Référence :73028683
  • Etage(s) : 2
  • Cuisine :
  • Prix : 275000 €
  • Chambre(s) : NC
  • Terrasse : NON
  • Toilette(s) : 2
  • Exposition : Nord

Autres caractéristiques

cave

    CE BIEN VOUS INTÉRESSE ?




    L'AGENCE

    WELLCOME IMMOBILIER

    VISITER