Facebook LinkedIn Instagram
ETRE RAPPELÉ

Appartement

AIX LES BAINS (73100)
1 139 000€

Piéces : 3

Superficie : 90 m²

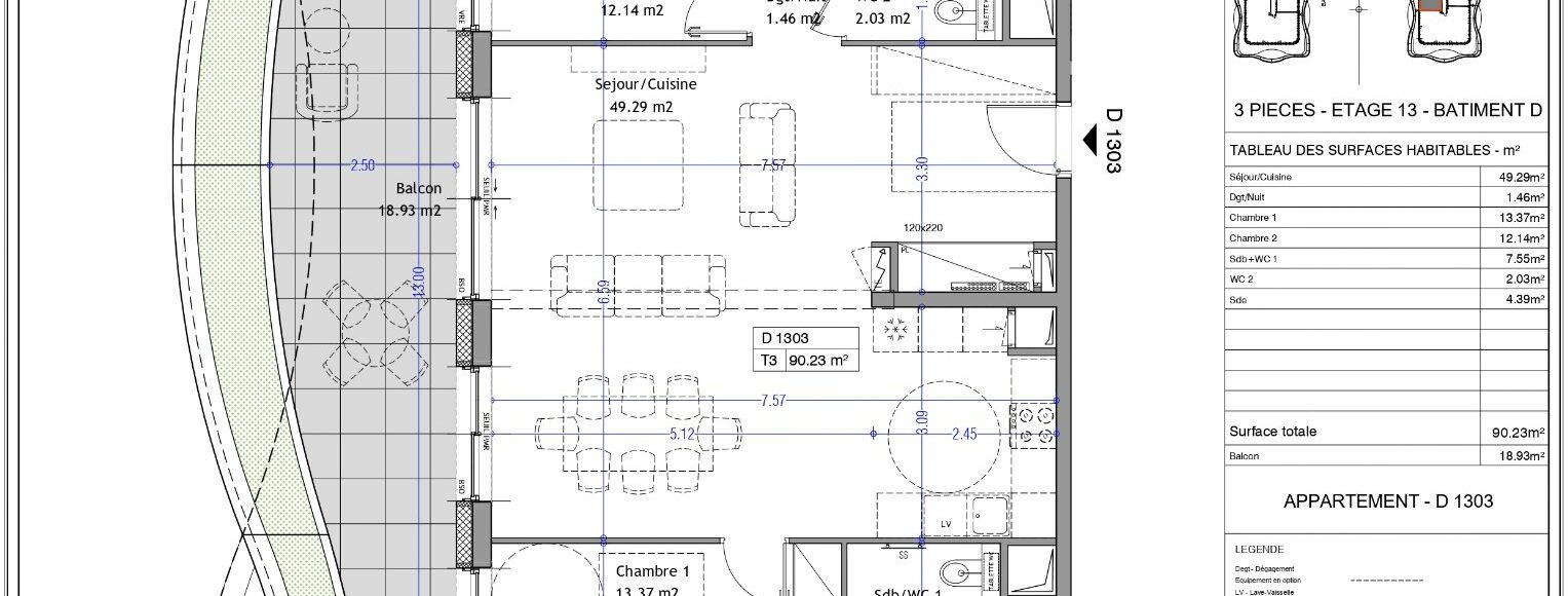
À Aix-les-Bains, dans la prestigieuse résidence « Les Nouveaux Thermes » - Découvrez cet appartement T3 d’exception de 90,23m² au 13ème en attique côté Nord dans le bâtiment SUD. Cet appartement unique se distingue par une distribution intérieure remarquable : un vaste séjour cuisine de 49,29m² avec accès au balcon végétalisé de 18,93m², une chambre avec salle d'eau et wc, une chambre avec salle de bains et wc, wc indépendant. Vendu avec un garage en sous-sol sécurisés. La résidence se distingue par ses prestations premium et son engagement environnemental : façades végétalisées sur 3,5 km, plus de 15 000 plantes, toitures vertes, récupération des eaux pluviales et planchers chauffants/rafraîchissants par géothermie. Contactez votre agencen WellCome Immobilier pour réserver cet appartement d’exception parmi les premiers lots disponibles ! Frais de notaire réduits Programme certifié RE2020 seuil 2022 & NF Habitat HQE Livraison 1er trimestre 2029 Surface CARREZ : 90.23 m²
  • Ville : AIX LES BAINS
  • Code postal : 73100
  • Pays : France
  • Surface : 90 m²
  • Parking : NC
  • N° : 0
  • Pièces : 3
  • Référence :73028857
  • Etage(s) : 13
  • Cuisine :
  • Prix : 1139000 €
  • Chambre(s) : 2
  • Terrasse : NON
  • Toilette(s) : 2
  • Exposition : Nord

Autres caractéristiques

construit en 2029 - ascenseur

    CE BIEN VOUS INTÉRESSE ?




    L'AGENCE

    WELLCOME IMMOBILIER

    VISITER