Facebook LinkedIn Instagram
ETRE RAPPELÉ

Appartement

Aix-les-bains (73100)
497 000€

Piéces : 2

Superficie : 63 m²

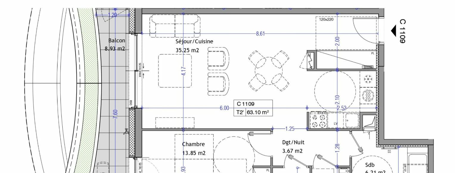
Appartement neuf T2 de 63 m² + Box inclus — Étage 11/13 — Résidence « Les Nouveaux Thermes » À Aix-les-Bains, en cœur de ville au sein de la prestigieuse résidence « Les Nouveaux Thermes », découvrez ce rare appartement 2 pièces de 63,10 m² situé au 11ème étage et bénéficiant d’une exposition Nord. Agencement de l'appartement T2 : -Pièce de vie avec cuisine ouverte : 35,25 m² -Dégagement/Nuit : 3,67 m² -Chambre : 13,85 m² -Salle de bain : 6,21 m² -WC : 1,98m² -Dressing : 2,14 m² Prolongement naturel du séjour, un balcon végétalisé de 8,93 m² exposé Nord crée un véritable espace de détente en extérieur. 1 Box fermé en sous-sol sécurisé inclus. Prestations haut de gamme : Chauffage et rafraîchissement par géothermie avec plancher chauffant. Menuiseries aluminium double vitrage. Brise-soleil orientables (BSO) et volets roulants électriques. Finitions personnalisables selon vos envies Confort et sérénité au quotidien : Locaux vélos et poussettes sécurisés. Résidence écoresponsable avec façades et toitures végétalisées, récupération des eaux pluviales, haute performance énergétique D’autres appartements T2 sont disponibles dans la résidence (de 39m² à 63m² au prix de 291 000 € à 553 900 €). Pour plus d’informations et pour réserver votre futur appartement contactez votre agence WellCome Immobilier ! Livraison : 1er Trimestre 2029 Frais de notaire réduits Programme certifié RE2020 seuil 2022 & NF Habitat HQE Surface CARREZ : 63.1 m²
  • Ville : Aix-les-bains
  • Code postal : 73100
  • Pays : France
  • Surface : 63 m²
  • Parking : NC
  • N° : 0
  • Pièces : 2
  • Référence :73028962
  • Etage(s) : 13
  • Cuisine :
  • Prix : 497000 €
  • Chambre(s) : 1
  • Terrasse : NON
  • Toilette(s) : 1
  • Exposition : Nord

Autres caractéristiques

construit en 2029 - ascenseur

    CE BIEN VOUS INTÉRESSE ?




    L'AGENCE

    WELLCOME IMMOBILIER

    VISITER