Facebook LinkedIn Instagram
ETRE RAPPELÉ

APPARTEMENT T2

Grenoble (38100)
142 000€

Piéces : 2

Superficie : 46.67 m²

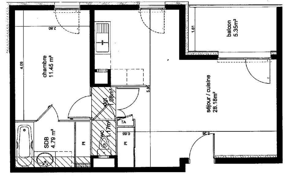
Grenoble rue claude genin appartement T2 de 47 M2 situé au 3ème étage sur 4 d'une copropriété calme et sécurisée de 2010, possibilité d'un grand garage de 16 m2 en sous-sol en sus. iLcomprend un séjour spacieux de 28 m2 avec cuisine ouverte donnant sur une petite terrasse de 5 M2 agréable à l'est vue belledonne, placard de rangement à l'entrée, une chambre, wc indépendant, salle de bains avec baignoire et placard, volets roulants électriques, chaufage collectif avec sous-compteur, local vélos dans la résience.Ce bien est vendu loué, bail jusqu'au 25.01.2027 (loyer 785 euro CC (eau froide et chaude chauffage) .proche de tous commerces, université, autoroute.
idéal investsseurs ou jeunes couples pour toutes visites MME SECCO ANITA 06 42 95 43 93.
  • Ville : Grenoble
  • Code postal : 38100
  • Pays : France
  • Surface : 46.67 m²
  • Parking : NC
  • N° :
  • Pièces : 2
  • Référence :1_376
  • Etage(s) : 4
  • Cuisine :
  • Prix : 142000 €
  • Chambre(s) : 1
  • Terrasse : NON
  • Toilette(s) : NC
  • Exposition : Est

Classe énergetique

A+
A
B
C
D
E
F
G
H

Classe climat

A+
A
B
C
D
E
F
G
H

Autres caractéristiques

ascenseur - interphone - climatisation

    CE BIEN VOUS INTÉRESSE ?




    L'AGENCE

    BLAIN IMMOBILLIER

    VISITER