Facebook LinkedIn Instagram
ETRE RAPPELÉ

Appartement

Thonon-les-Bains (74200)
499 900€

Piéces : 4

Superficie : 87 m²

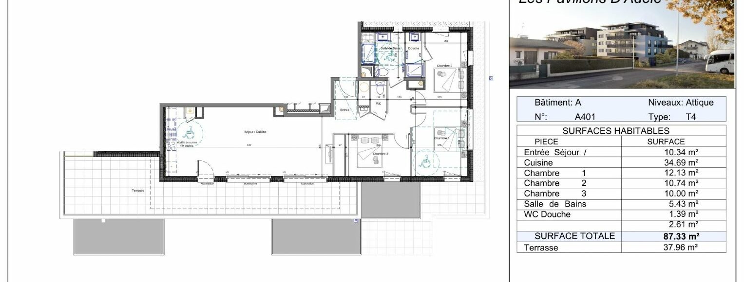
[OFFRE EN COURS : Frais de notaire RÉDUITS + Livraison selon programme] À Thonon-les-Bains, au pied des Alpes, face au Jura et à proximité immédiate de la Suisse, dans un secteur recherché offrant un cadre de vie privilégié entre lac Léman et montagnes, découvrez ce bel appartement neuf 4 pièces, situé au dernier étage (attique) d’une résidence contemporaine. La résidence à l’architecture moderne s’intègre harmonieusement dans son environnement résidentiel et propose des prestations de qualité, idéales pour une résidence principale confortable ou un investissement patrimonial. Composition de l’appartement T4 : Entrée : 10,34 m² Séjour / Cuisine : 34,69 m² Chambre 1 : 12,13 m² Chambre 2 : 10,74 m² Chambre 3 : 10 m² Salle de bains : 5,43 m² Salle d’eau : 2,61 m² WC : 1,39 m² Surface habitable totale : 87,33 m² L’appartement bénéficie également d’une spacieuse terrasse de 37,96 m², idéale pour profiter pleinement d’un espace extérieur avec vue dégagée. Annexes & équipements : Inclus avec l'appartement 1 box,Résidence sécurisée, Prestations modernes et confortables, Environnement résidentiel recherché Appartement idéal pour une résidence principale familiale ou un investissement immobilier dans une ville dynamique de Haute-Savoie, à proximité du lac Léman et de la frontière suisse. Contactez-nous dès maintenant pour plus d’informations et découvrir ce bien ! Bien soumis au statut juridique de la copropriété – 36 lots principaux (hors annexes) Aucune procédure en cours Prix TTC – Honoraires à la charge du vendeur Surface CARREZ : 87.33 m²
  • Ville : Thonon-les-Bains
  • Code postal : 74200
  • Pays : France
  • Surface : 87 m²
  • Parking : NC
  • N° :
  • Pièces : 4
  • Référence :730281000
  • Etage(s) : 4
  • Cuisine :
  • Prix : 499900 €
  • Chambre(s) : 3
  • Terrasse : NON
  • Toilette(s) : 1
  • Exposition : NC

Autres caractéristiques

construit en 2026 - ascenseur

    CE BIEN VOUS INTÉRESSE ?




    L'AGENCE

    WELLCOME IMMOBILIER

    VISITER