Facebook LinkedIn Instagram
ETRE RAPPELÉ

Appartement

Cognin (73160)
213 000€

Piéces : 3

Superficie : 39 m²

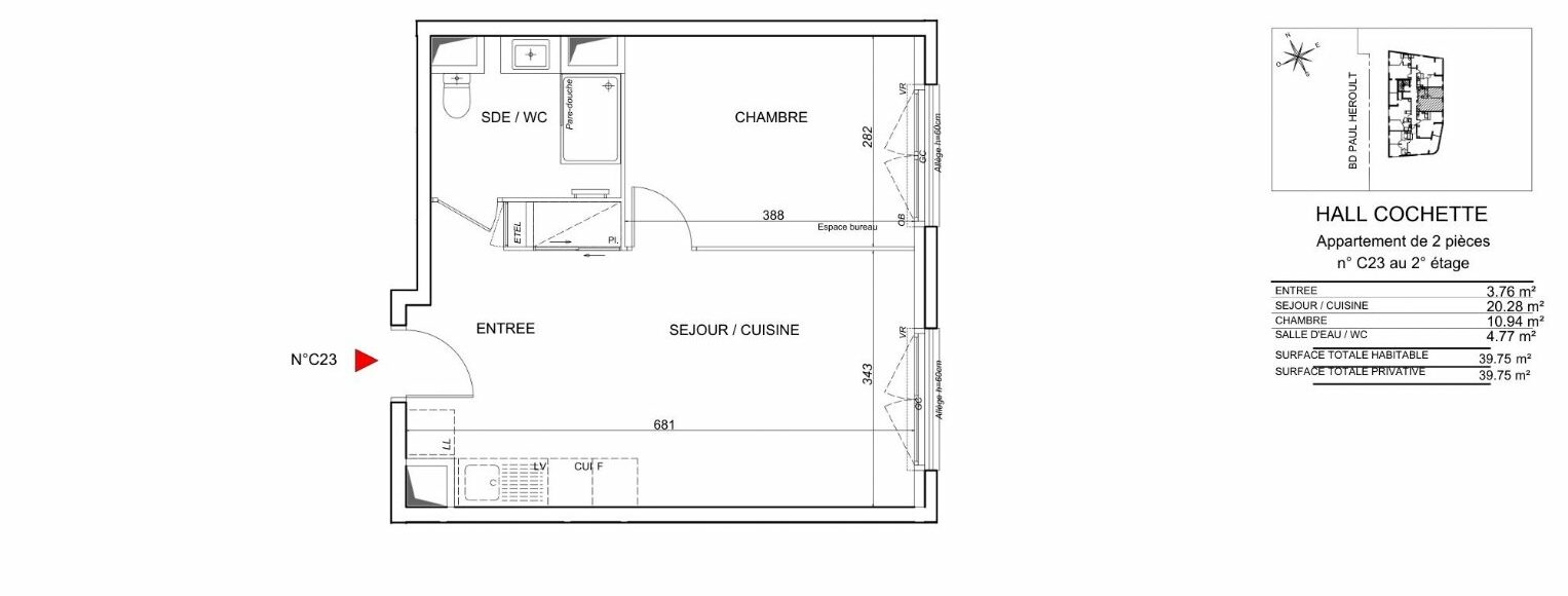
[OFFRE EN COURS : Frais de notaire RÉDUITS + Livraison T2 2028 – Actable dès maintenant !] À Cognin, à seulement 7 minutes du centre-ville de Chambéry, dans un secteur résidentiel recherché offrant de belles vues sur les reliefs montagneux et à proximité immédiate des commodités (commerces, écoles, transports) – découvrez ce bel appartement neuf 2 pièces de 39,75 m², situé au 2ème étage de la nouvelle résidence « SCALA », dont la livraison est prévue au 2ème trimestre 2028 (actable dès maintenant). La résidence à l’architecture élégante se compose de 5 bâtiments de 6 niveaux maximum, parfaitement intégrés dans un environnement verdoyant avec cœur d’îlot paysager et vues dégagées sur les montagnes. Composition de l’appartement T2 : Entrée : 3,76 m² Séjour / Cuisine : 20,28 m² Chambre : 10,94 m² Salle d’eau avec WC : 4,77 m² Surface habitable totale : 39,75 m² Annexes & équipements : 1 place de parking en sous-sol incluse, Local vélos à disposition, Résidence sécurisée Appartement idéal pour un premier achat, un pied-à-terre ou un investissement locatif dans une ville dynamique aux portes des Alpes. Contactez-nous dès maintenant pour plus d’informations et réserver votre appartement parmi les premiers lots disponibles ! Programme certifié NF Habitat et conforme à la RT 2012 Éligible Pinel (zone B1), PTZ, LLI, LMNP et LMP Bien soumis au statut juridique de la copropriété – 140 lots (hors annexes) Aucune procédure en cours Prix TTC – Honoraires à la charge du vendeur
  • Ville : Cognin
  • Code postal : 73160
  • Pays : France
  • Surface : 39 m²
  • Parking : 1
  • N° :
  • Pièces : 3
  • Référence :73028995
  • Etage(s) : 6
  • Cuisine :
  • Prix : 213000 €
  • Chambre(s) : 2
  • Terrasse : NON
  • Toilette(s) : 1
  • Exposition : Sud

Autres caractéristiques

ascenseur

    CE BIEN VOUS INTÉRESSE ?




    L'AGENCE

    WELLCOME IMMOBILIER

    VISITER