Facebook LinkedIn Instagram
ETRE RAPPELÉ

Appartement

La Ravoire (73490)
354 000€

Piéces : 4

Superficie : 81 m²

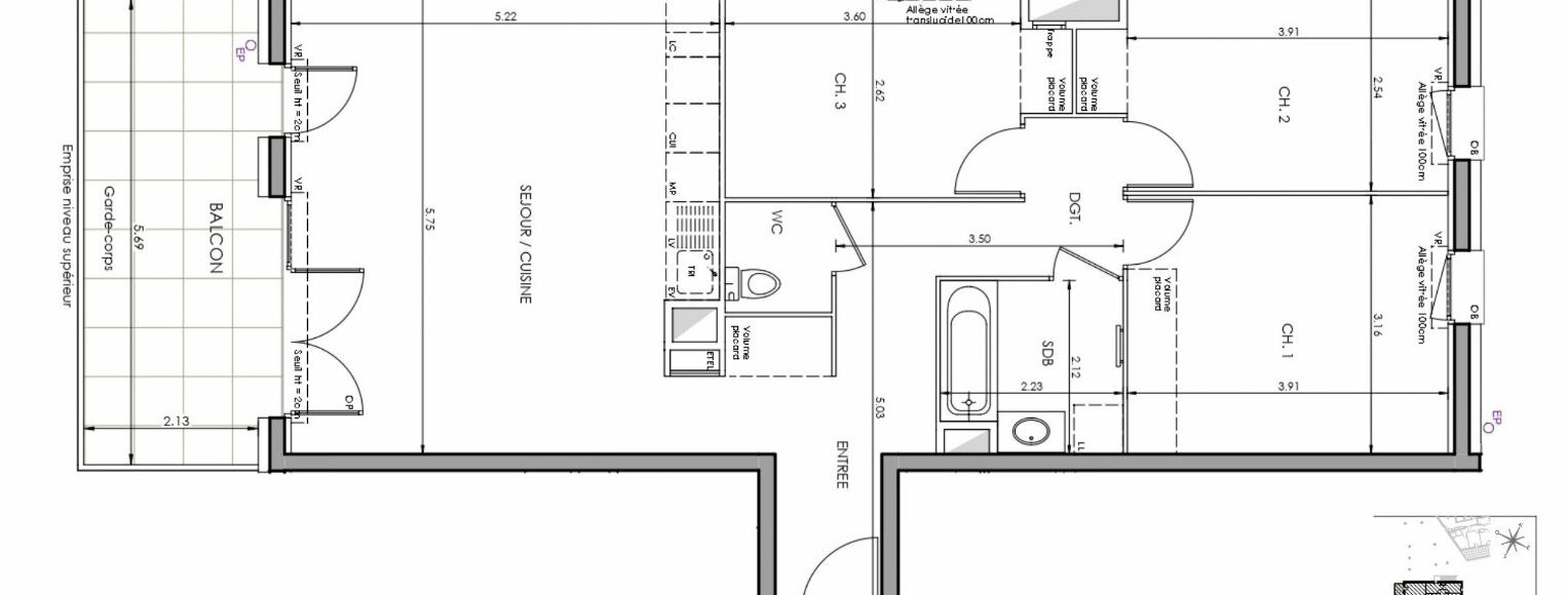
Appartement neuf T4 de 80m² Sud-Ouest - Box double et Cave inclus – La Ravoire À La Ravoire, en cœur de ville et à proximité immédiate des commodités à pied ou à vélo, à seulement 15 min de Chambéry et 8 min de Challes-les-Eaux, découvrez dans la nouvelle résidence 'Linéa Parc' cet appartement 4 pièces de 80,70 m² situé au 1er étage sur 6 et côté Sud-Ouest au sein d’un ensemble de 9 bâtiments avec cœur d’îlot verdoyant (du T2 au T4), les logements offrent de beaux volumes lumineux et des vues dégagées sur les massifs environnants. Agencement de l’appartement T4 : -Séjour/Cuisine : 29,60m² avec balcon de 12,10m² orienté Sud-Ouest -Entrée : 6,90m² -3 Chambres : 12,40m², 10,60m², 10,10m² -Salle de bain : 4,40m² -WC : 1,80m² -Dégagement : 4,90m² Vendu avec un garage double et une cave en sous-sol sécurisé. Présence de locaux vélos. Côté prestations : menuiseries PVC double vitrage avec volets roulants manuels. Chauffage et eau chaude sanitaire via chaufferie collective bois. Finitions personnalisables selon vos envies. D’autres appartements T4 sont disponibles dans la résidence (de 80m² à 85m², de 354 000 € à 366 000 €). [OFFRE DE LANCEMENT : Remise de 9 000 € sur les T2, 14 000 € sur les T3 et 20 000 € sur les T4 (Offre limitée aux 5 premières réservations)] Pour plus d’informations et pour réserver votre futur appartement, contactez votre agence WellCome Immobilier ! Livraison : 2ème trimestre 2028. Frais de notaire réduits. Éligible : TVA 5,5 %, PTZ, LLI, LMNP, Zone fiscale A. Certifications : NF Habitat & RE2020. Bien soumis au statut juridique de la Copropriété. Nb de lots : 137. Pas de procédure en cours. Honoraires à la charge du vendeur
  • Ville : La Ravoire
  • Code postal : 73490
  • Pays : France
  • Surface : 81 m²
  • Parking : NC
  • N° : 0
  • Pièces : 4
  • Référence :730281027
  • Etage(s) : 6
  • Cuisine :
  • Prix : 354000 €
  • Chambre(s) : 3
  • Terrasse : NON
  • Toilette(s) : 1
  • Exposition : Sud

Autres caractéristiques

construit en 2028 - ascenseur - cave

    CE BIEN VOUS INTÉRESSE ?




    L'AGENCE

    WELLCOME IMMOBILIER

    VISITER