Facebook LinkedIn Instagram
ETRE RAPPELÉ

Appartement

Cognin (73160)
261 000€

Piéces : 3

Superficie : 60 m²

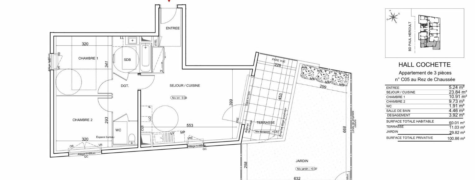
À Cognin, aux portes de Chambéry, à seulement 7 minutes du centre-ville, découvrez la nouvelle résidence « SCALA », idéalement située dans un secteur résidentiel recherché, à proximité immédiate des commodités (commerces, écoles, transports) et offrant de belles vues dégagées sur les reliefs montagneux. Profitez d’une offre en cours avec frais de notaire réduits, pour une livraison prévue au 2ème trimestre 2028, actable dès maintenant. Cette résidence à l’architecture élégante se compose de 5 bâtiments de 6 étages maximum, parfaitement intégrés dans un environnement verdoyant avec cœur d’îlot paysager, offrant un cadre de vie agréable entre nature et ville. Nous vous proposons ici un appartement 3 pièces de 60 m², situé au RDC, conçu pour offrir confort, fonctionnalité et luminosité naturelle. Il se compose de : Une entrée (5,24 m²) Un séjour avec cuisine ouverte (23,84 m²) Une chambre 1 (10,91 m²) Une chambre 2 (9,73 m²) Une salle de bain (4,46m²) WC (m 1,91²) Dégagement (3,92m²) Vendu avec box électrique privative en sous-sol, l’appartement bénéficie également d’un accès à un local à vélos au sein d’une résidence sécurisée. Idéal pour habiter, réaliser un premier achat, disposer d’un pied-à-terre ou investir dans une ville dynamique aux portes des Alpes. Contactez-nous dès maintenant pour en savoir plus et réserver votre futur appartement parmi les premiers lots disponibles ! Programme certifié NF Habitat et conforme à la RT 2012. Éligible aux dispositifs Pinel (zone B1), PTZ, LLI, LMNP et LMP. Bien soumis au statut de la copropriété – 140 lots (hors annexes). Aucune procédure en cours. Prix TTC – Honoraires à la charge du vendeur. Surface CARREZ : 60.01 m²
  • Ville : Cognin
  • Code postal : 73160
  • Pays : France
  • Surface : 60 m²
  • Parking : NC
  • N° :
  • Pièces : 3
  • Référence :730281059
  • Etage(s) : 5
  • Cuisine :
  • Prix : 261000 €
  • Chambre(s) : 2
  • Terrasse : NON
  • Toilette(s) : NC
  • Exposition : Sud

Autres caractéristiques

construit en 2028 - ascenseur

    CE BIEN VOUS INTÉRESSE ?




    L'AGENCE

    WELLCOME IMMOBILIER

    VISITER