Facebook LinkedIn Instagram
ETRE RAPPELÉ

Appartement

Annecy (74000)
490 000€

Piéces : 4

Superficie : 88 m²

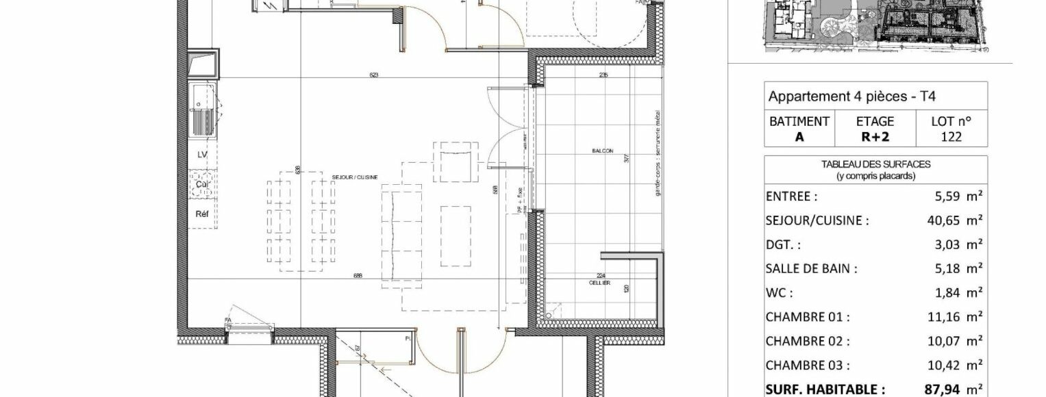
Appartement T4 neuf de 88 m² au 2ème étage EST - 1 Garage – Livraison T4 2026 – Annecy À Annecy, secteur Cran-Gevrier à 15 minutes à pied du centre-ville et à proximité immédiate des commodités - Découvrez ce bel appartement 4 pièces neuf de 87,94 m² au 2ème étage côté Est. Frais de notaire réduits – Livraison 4ème trimestre 2026 - FRAIS DE NOTAIRES OFFERTS + 2% de Remise ! Agencement intérieur du T4 : -Entrée : 5,59m² -Séjour / Cuisine : 40,65 m² – exposition Est, grande baie vitrée -Dégagement : 3,03 m² -Salle de bains : 5,18 m² -WC séparé : 1,84 m² -3 chambres : 11,6 m², 10,07 m², 10,42 m² L’espace de vie s’ouvre sur un balcon de 8,78 m² côté Es avec cellier extérieur de 2,69 m². Prestations & confort : Chauffage et eau chaude via installation collective (PAC + chaudière gaz), Menuiseries bois double vitrage, Volets roulants électriques, Porte d’entrée sécurisée, Locaux vélos et poussettes dans la résidence 1 garage sécurisé en sous-sol inclus Contactez l’agence WellCome Immobilier pour plus d’informations et réserver ce bien. D’autres appartements T4 et T5 sont également disponibles dans la résidence. Frais de notaire REDUITS. Livraison : 4ème Trimestre 2026. Programme au normes RE2020. Éligible Pinel (zone A), PTZ+, LLI TVA 10 %. Bien soumis au statut juridique de la Copropriété. Nb de lots : 105. Pas de procédure en cours. Prix TTC et Honoraires à charge vendeur TTC
  • Ville : Annecy
  • Code postal : 74000
  • Pays : France
  • Surface : 88 m²
  • Parking : NC
  • N° :
  • Pièces : 4
  • Référence :730281076
  • Etage(s) : 3
  • Cuisine :
  • Prix : 490000 €
  • Chambre(s) : 3
  • Terrasse : NON
  • Toilette(s) : 1
  • Exposition : Est

Autres caractéristiques

construit en 2026 - ascenseur

    CE BIEN VOUS INTÉRESSE ?




    L'AGENCE

    WELLCOME IMMOBILIER

    VISITER